OPPORTUNITY TO BUILD YOUR OWN HOME....One of the last remaining building plots that is on the privileged Rio Verde side of Puerto Banús, and with a licensed project in hand.
Puerto Banus
Atalaya de Rio Verde. Plot with Project and License. Walking distance to Puerto Banus.
A large home built over 746m2 including terraces and pool.
The villa has been designed with a superb roof terrace of 88m2 for long lazy evenings of enjoyment under the Mediterranean skies. The roof terrace is accessible by the elevator, making it a great and easy way to utilise this space.
The ground floor is designed over 395m2, this size includes the pool and the terraces, and comprises of a large open plan living area of 77m2 with double height ceiling and huge floor to ceiling windows. Impressive architecture which frames the lovely pool and garden area outside.
A very generous open-plan kitchen and dining room. This space covers 43m2 and includes a separate utility room.
On this ground floor level is one double bedroom with ensuite bathroom and built in wardrobes.
Designed with an elevator which travels from the basement to the roof terrace. Very convenient.
The main staircase in this luxury Marbella villa travels from the ground floor hallway to the first floor, built over an area of 155m2, where the double height design of the very heart of this villa allows for a wonderful featured gallery. This is a bright and elevated mezzanine of 22m2 which looks over the living room area below and gives astonishing views through the double height windows to the south across Puerto Banus and to the Mediterranean Sea.
From this lovely feature the bedrooms of the first floor are accessed. The master bedroom designed with high ceilings of 19sqm with a separate dressing room area of 15m2, and luxury ensuite bathroom of 12.5m2. This master suite accesses the west-facing uncovered terrace of 16m2.
There are a further 2 bedrooms on this level, each of 19m2 and each with it's own ensuite bathroom. Both of these bedrooms have direct access to the south facing covered terrace.
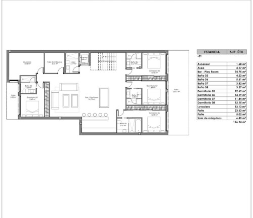
The basement offers excellent extra space. 196m2 of room to develop as the new owner wishes. On wither side of this lower level are English patios, designed to allow natural light into the gym, play room and other areas within the basement.
The current design offers a gym of 12.3m2.
English patios feature on either side of the villa.
A space of 45m2 to create a playroom, bar and wine cellar area, a must of any luxury home in Marbella.
With the potential for 3 bedrooms of 10 m2 each with it's own ensuite bathroom.
A machine room for the technical installations of the villa.
The pool has dimensions of 4 by 14 m2 and is designed to be close to the property so that it becomes as much a feature of the architecture as it is a pleasant recreational facility.
There are carport garages for 3 cars at the entrance to the villa, and additionally a small service room and bathroom for gardener and other staff.
Located in Atalaya de Río Verde, a residential area approximately 2 km from Puerto Banús and 5 km from Marbella. Easily accessible from the highway and well connected, it is close to all types of restaurant and leisure services. This is the area where we find the so called "Green River". It is the largest river on the Western Costa del Sol. It begins in the Sierra de las Nieves, specifically between the municipalities of Istán, Tolox and Parauta, and has a route of about 35 km until its mouth into the Mediterranean, near Puerto Banús.
1369m2
Plot Size
746m2
Built Area
-
Terraces
0
Bedrooms
0
Bathrooms
Yes
Pool
Photo Gallery
19 Images
Contact us for more information about this property
Our team are ready and waiting to assist you. Request more information, a callback or a viewing for this property using the form below.
Login
Login to save your favorite properties, setup property alerts and easily request more info about any of our properties.